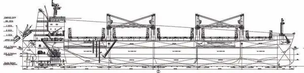
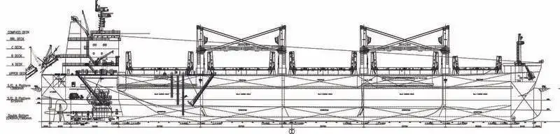
| 63,200DWT বাল্ক ক্যারিয়ার | |
| শিপ আইডি | 9862 |
| শ্রেণী | বাল্ক ক্যারিয়ার |
| বিল্ড ইয়ার | 2020 |
| জাহাজ যোগ করার তারিখ | 2025-10-25 |
| দ্বারা যোগ করা | Global Work Boats |
পরিমাপ করা ওজন
| DWT | 63200 |
জাহাজের মাত্রা
| সামগ্রিক দৈর্ঘ্য (LOA), মি | 199.9 |
| গভীরতা, মি | 9.9 |
অতিরিক্ত তথ্য
| স্ব-চালিত | |
| ডেক | 1 |
| অনুরূপ জাহাজ | অনুরূপ জাহাজ দেখান |
| অনুরোধ | ক্রয় অনুরোধ মিলে |
| ই-মেইল | ইমেইল পাঠান |

